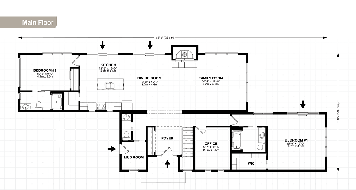
Description
The Q-M1 is a modern home in the truest sense of the word. Both clean and spacious, it delivers open communication, comforting line of sight and efficient use of it’s space. The Q-M1’s floor to ceiling windows provide ample opportunity to engage the space outside your home as well as in. Live the way you want, in comfort, style and security in our higher than industry standards and materials. The Q-M1, connecting you to the people who matter most.
Highlights
- Modern contemporary style
- Sloping ceilings throughout
- Large stone wood burning fireplace
- Wall to wall bookcase in office
Features of Every Custom Home
- Built Indoors safe from the elements
- Standard Heat Recovery Ventilators
- Barrier-free options available
Customization & Options
Relocate laundry to main floor.
Upgrade to steel roof.
Add decorative ceiling beams to main living area.
Change office into bedroom #3
Convert to gas fireplace.
